Nos avis clients
Nos avis clients
0
  • Acheter De l'ancien
  • Louer
Dans un rayon de
Budget
Mini
Maxi

    Faites estimer votre bien par un professionnel

    Estimer votre bien
    3 Pièce(s)
    2 Chambre(s)

    Investissement clé en main – T3 rénové avec locataire en place, rentabilité 7.97% brut

    Le Pontet (84130)
    Réf : AJ31032025-1

    SIGA IMMOBILIER LONGCHAMP vous propose à la vente ce T3 de 62 m², situé au Pontet (84130), entièrement rénové en 2022 et déjà loué.

    Un bien idéal pour un investisseur souhaitant bénéficier d’un revenu locatif immédiat sans travaux à prévoir.

    Les atouts du bien :

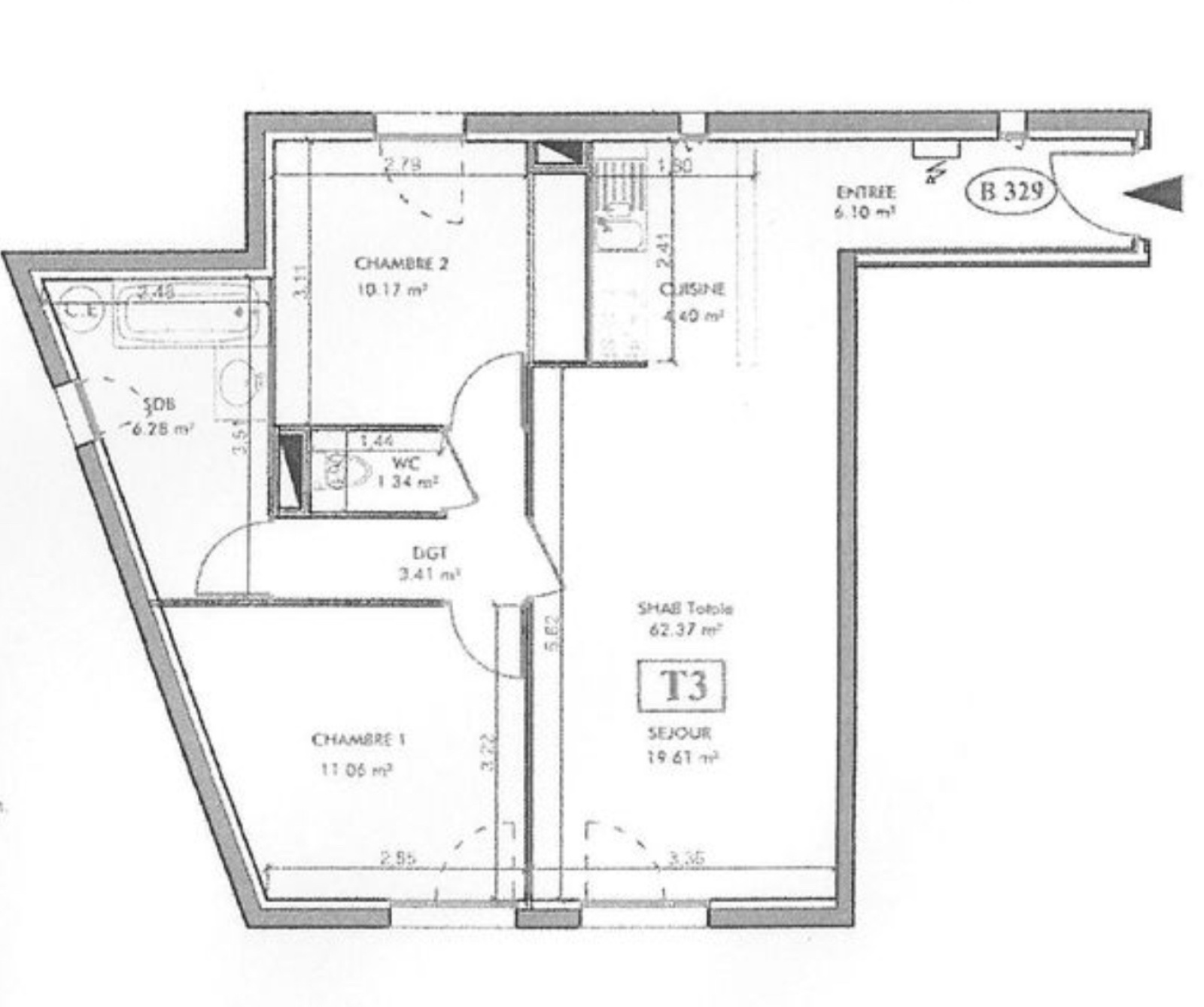
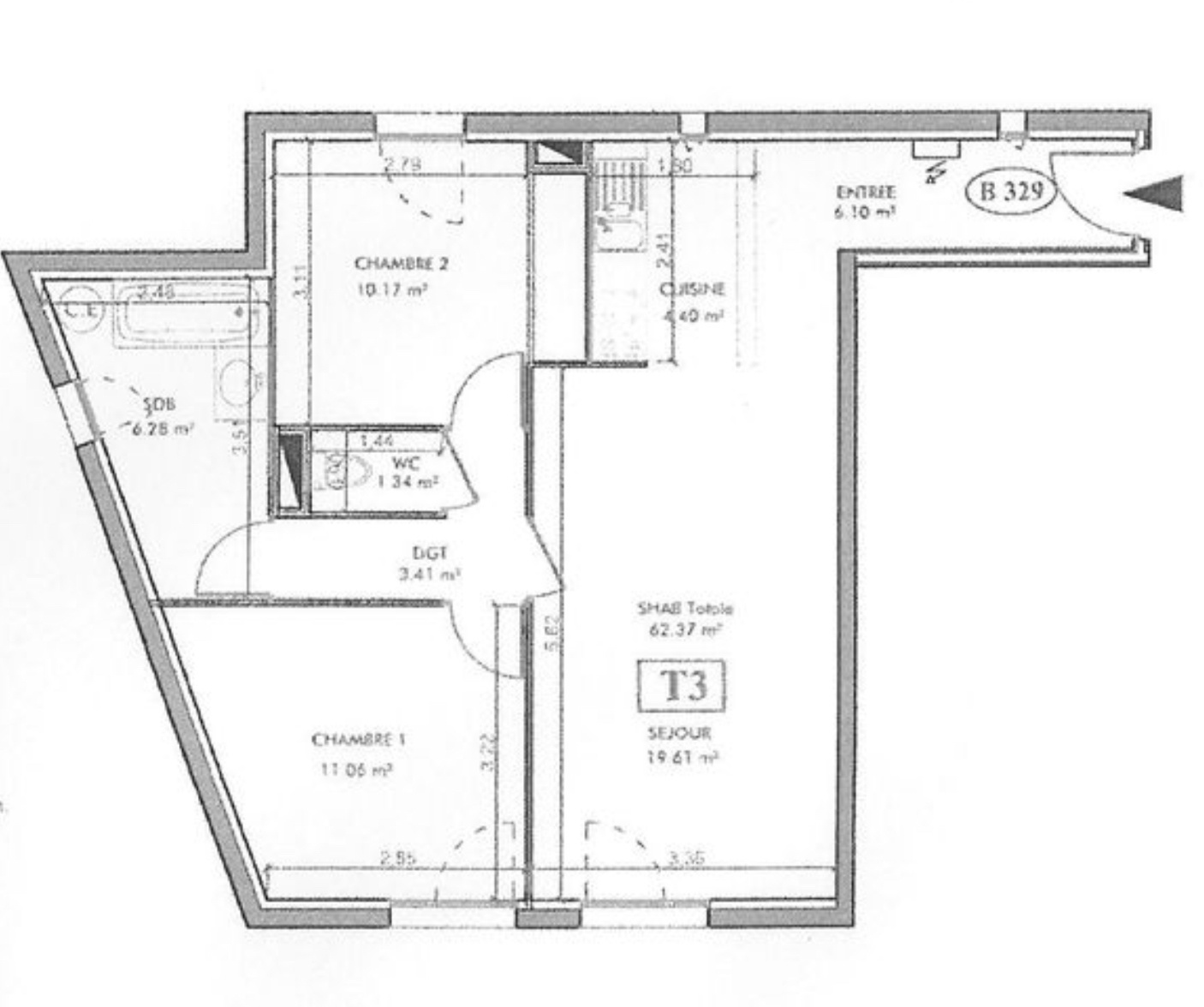
    • Surface : 62 m²
    • Appartement de type 3 en dernier étage
    • Rénovation complète réalisée en 2022
    • Locataire en place, bail en cours (fin de bail juillet 2028)
    • Loyer mensuel : 578.43 € hors charges + 40 € de provisions
    • Rentabilité brute attractive : 7.97%

    Situé dans un secteur recherché, à proximité immédiate des commerces, écoles et transports, cet appartement offre un investissement sécurisé et pérenne.

    Un placement serein avec rendement dès l’acquisition.

    Pour toute information complémentaire ou étude de rentabilité, contactez :

    Alexandre JANSSON
    07 81 28 93 10

    Ce bien vous intéresse ?
    Fieldset par défaut
    Fieldset par défaut
    Validation

    * Champs obligatoires

    Contacter l'agence
    Validation
    Les informations recueillies sur ce formulaire sont enregistrées dans un fichier informatisé par La Boite Immo agissant comme Sous-traitant du traitement pour la gestion de la clientèle/prospects de l'Agence / du Réseau qui reste Responsable du Traitement de vos Données personnelles. La base légale du traitement repose sur l'intérêt légitime de l'Agence / du Réseau. Elles sont conservées jusqu'à demande de suppression et sont destinées à l'Agence / au Réseau. Conformément à la loi « informatique et libertés », vous disposez des droits d’accès, de rectification, d’effacement, d’opposition, de limitation et de portabilité de vos données. Vous pouvez retirer votre consentement à tout moment en contactant directement l’Agence / Le Réseau. Consultez le site https://cnil.fr/fr pour plus d’informations sur vos droits. Si vous estimez, après avoir contacté l'Agence / le Réseau, que vos droits « Informatique et Libertés » ne sont pas respectés, vous pouvez adresser une réclamation à la CNIL. Nous vous informons de l’existence de la liste d'opposition au démarchage téléphonique « Bloctel », sur laquelle vous pouvez vous inscrire ici : https://www.bloctel.gouv.fr Dans le cadre de la protection des Données personnelles, nous vous invitons à ne pas inscrire de Données sensibles dans le champ de saisie libre.
    Ce site est protégé par reCAPTCHA, les Politiques de Confidentialité et les Conditions d'Utilisation de Google s'appliquent.

    En Bref

    Code postal 84130
    Surface habitable (m²) 62 m²
    Surface loi Carrez (m²) 63 m²
    Nombre de chambre(s) 2
    Nombre de pièces 3
    Etage 3
    Ascenseur OUI
    Nb de salle de bains 1
    Cuisine Américaine
    Type de cuisine Equipée
    Mode de chauffage Electrique
    Type de chauffage Convecteur
    Format de chauffage Individuel
    Nombre de parking 1
    Année de construction 2010

    Infos financières

    Prix de vente 87 000 €
    Les honoraires d'agence seront intégralement à la charge du vendeur  
    Charges 160 €
    Taxe foncière annuelle 956 €

    Energie

    Energie
    DPE
    GES
    4 -> Erreur de chargement d'un module /.tpl