Nos avis clients
Nos avis clients
0
  • Acheter De l'ancien
  • Louer
Dans un rayon de
Budget
Mini
Maxi

    Faites estimer votre bien par un professionnel

    Estimer votre bien
    3 Pièce(s)
    2 Chambre(s)

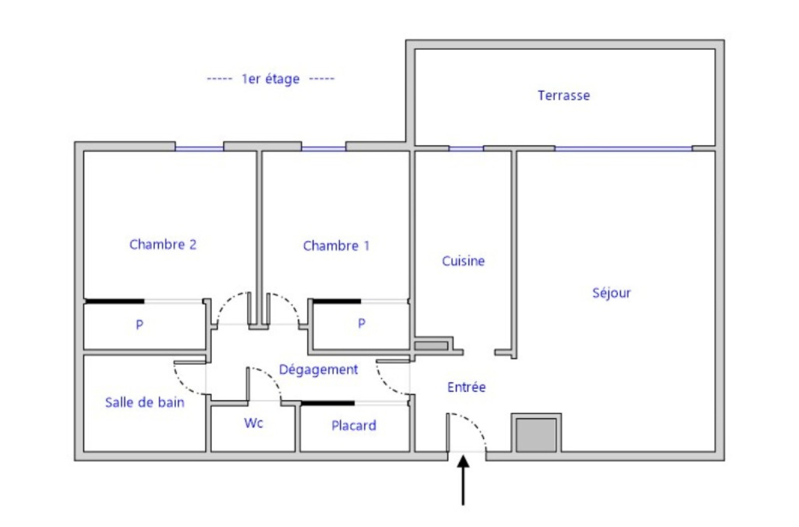
    T3 AVEC TERRASSE ET POSSIBILITE BOX DOUBLE EN SUS

    Marseille (13008)
    Réf : LJ26042026

    Quartier Sainte-Anne – Résidence fermée et sécurisée au calme

    Situé au cœur du quartier prisé de Sainte-Anne, au sein d’une résidence fermée, sécurisée et parfaitement entretenue, venez découvrir ce bel appartement T3 de 68 m², situé au 1er étage avec ascenseur.

    L’appartement se compose d’un séjour lumineux ouvrant sur une agréable terrasse de 11 m² exposée Ouest, idéale pour profiter des fins de journée. La cuisine est séparée, fonctionnelle et bien agencée.

    L’espace nuit offre deux chambres équipées de dressings, une salle de bains ainsi qu’un WC indépendant.
    Le bien est en bon état général et bénéficie du double vitrage pour un confort optimal.

    Un garage double de 26 m² en sus peut compléter ce bien (35 000euros).

    Environnement calme, proche des commodités et des axes principaux.

    Ce bien vous intéresse ?
    Fieldset par défaut
    Fieldset par défaut
    Validation

    * Champs obligatoires

    Contacter l'agence
    Validation
    Les informations recueillies sur ce formulaire sont enregistrées dans un fichier informatisé par La Boite Immo agissant comme Sous-traitant du traitement pour la gestion de la clientèle/prospects de l'Agence / du Réseau qui reste Responsable du Traitement de vos Données personnelles. La base légale du traitement repose sur l'intérêt légitime de l'Agence / du Réseau. Elles sont conservées jusqu'à demande de suppression et sont destinées à l'Agence / au Réseau. Conformément à la loi « informatique et libertés », vous disposez des droits d’accès, de rectification, d’effacement, d’opposition, de limitation et de portabilité de vos données. Vous pouvez retirer votre consentement à tout moment en contactant directement l’Agence / Le Réseau. Consultez le site https://cnil.fr/fr pour plus d’informations sur vos droits. Si vous estimez, après avoir contacté l'Agence / le Réseau, que vos droits « Informatique et Libertés » ne sont pas respectés, vous pouvez adresser une réclamation à la CNIL. Nous vous informons de l’existence de la liste d'opposition au démarchage téléphonique « Bloctel », sur laquelle vous pouvez vous inscrire ici : https://www.bloctel.gouv.fr Dans le cadre de la protection des Données personnelles, nous vous invitons à ne pas inscrire de Données sensibles dans le champ de saisie libre.
    Ce site est protégé par reCAPTCHA, les Politiques de Confidentialité et les Conditions d'Utilisation de Google s'appliquent.

    En Bref

    Code postal 13008
    Surface habitable (m²) 68 m²
    Surface loi Carrez (m²) 68 m²
    Nombre de chambre(s) 2
    Nombre de pièces 3
    Etage 1
    Nombre de niveaux 1
    Ascenseur OUI
    Nb de salle de bains 1
    Cuisine Séparée
    Type de cuisine SEMI-EQUIPEE
    Mode de chauffage Electrique
    Type de chauffage Radiateur
    Format de chauffage Individuel
    Interphone OUI
    Terrasse OUI
    Nombre de parking 1
    Exposition Ouest
    Année de construction 1996

    Infos financières

    Prix de vente honoraires TTC inclus 299 000 €
    Charges 145 €
    Taxe foncière annuelle 1 522 €

    Energie

    Energie
    DPE
    GES
    4 -> Erreur de chargement d'un module /.tpl